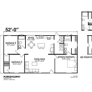
Prime Series / Mercer 2852H32P01

3D Tour

No 3d Tour Available

Floor Plan

Details

Manufactured

BEDS: 3     BATHS: 2.00     SQ FT: 1387     W X L: 26′ 8″ x 52′ 0″

BUILT BY: Champion Homes

The Prime Series / Mercer 2852H32P01 built by Champion Homes showcases a well-balanced layout with 1,387 sq. ft., offering 3 bedrooms and 2 bathrooms designed for everyday comfort. The Mercer 2852H32P01 features a spacious living room flowing into the dining area and kitchen, along with a private primary bedroom suite and two secondary bedrooms. With its efficient design and inviting spaces, this home delivers a welcoming place to live.

Specifications

Ac Ready: 18 Cu.Ft. Refrigerator - Black
Additional Specs: Detachable Hitch / 48” O.C. Outriggers / 7/16” OSB Roof Sheathing
Exterior Wall Studs: 2x6 Exterior Sidewalls - 16” O.C.
Floor Decking: 19/32” OSB Floor Decking
Floor Joists: 2x8 Floor Joist - 16” O.C. on 16’ Wide / 2x6 Floor Joist - 16” O.C. on 14’ Wide
Roof Load: 30Ib PSF Roof Load
Side Wall Height: 8’ Sidewall w/ Full Stomped Flat Ceiling
Insulation (Floors): R-11 Floor Insulation
Insulation (Walls): R-19 Sidewall Insulation
Insulation (Roof): R-28 Roof Insulation
Shutters: Shutters (Door Side & Hitch End)
Frame: Recessed Frame
Additional Specs: White Corner Posts / Upgraded Ice Dam Protection (PRIME PLUS Package)
Front Door: 6-Panel Residential Front Door (PRIME PLUS Package)
Rear Door: 6-Panel Residential Rear Door (PRIME PLUS Package)
Shingles: 3-Tab Shingle (Black)
Window Type: Vinyl Low-E Windows (No Grids)
Exterior Lighting: Exterior Lights at Both Doors
Exterior Outlets: Exterior Receptacle
Additional Specs: In-line Heat / Furnace Door
Electrical Service: 200 AMP Service
Furnace: Carrier Electric Furnace
Other: Exterior Faucet
Utility Cabinets: Washer/Dryer Shelf
Water Heater: 30-Gallon Electric Water Heater
Water Shut Off Valves: Whole House Shut Off
Bathroom Sink: Porcelain Lavs (PRIME PLUS Package)
Bathroom Countertops: Laminate Countertops
Bathroom Faucets: Metal Faucets Throughout
Bathroom Backsplash: 4” Laminate Backsplash
Bathroom Shower: 60” Fiberglass Shower in Primary Bath (PRIME PLUS Package)
Bathroom Bathtubs: Fiberglass Tub/Shower in Second Bath (PRIME PLUS Package)
Bathroom Mirror: Vanity Mirror in Both Baths
Kitchen Sink: 7” Stainless Steel Sink
Kitchen Range Type: Electric Range - Black
Kitchen Range Hood: 30” Vertical Vent Range Hood Vented Through Roof (PRIME PLUS Package)
Kitchen Drawer Type: 4-Drawer Bank in Kitchen
Kitchen Countertops: Laminate Countertops
Kitchen Cabinetry: 30” Overhead Cabinets w/ Adjustable Shelves / Shelf Over Refrigerator / Lined Cabinets - Overhead Only / 3/4” MDF Stiles / Round Cabinet Knobs
Kitchen Backsplash: 4” Laminate Backsplash
Wall Finish: Main Panel VOG Throughout
Interior Doors: 30” White 2-Panel Interior Doors
Interior Lighting: 6” Can Lights Throughout
Interior Flooring: Factory Select Linoleum Throughout
Cabinet System: Shaker MDF Cabinet w/ Full Overlay / Adjustable Center Shelves in Overhead (PRIME PLUS Package)

Tours & Videos

No Videos Available

Gallery

Please note:

All sizes and dimensions are nominal or based on approximate builder measurements. 3D Tours and photos may include dealer and/or factory installed options. Mobile Homes For Less reserves the right to make changes due to any changes in material, color, specifications, or features at any time without notice or obligation.