ValuHomes Limited / 14602U

3D Tour

No 3d Tour Available

Floor Plan

Details

Manufactured

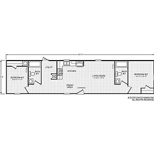
BEDS: 2     BATHS: 2.00     SQ FT: 820     W X L: 14′ 0″ x 60′ 0″

BUILT BY: Cavco Waco

The ValuHomes Limited / 14602U built by Cavco Waco combines efficient design with comfortable living across 820 sq. ft. The 14602U features 2 bedrooms and 2 bathrooms, offering a split-bedroom layout for added privacy. A central kitchen with an open dining area connects to a bright living room, while a convenient utility space enhances daily function. With its smart flow and practical features, The 14602U delivers a cozy and well-balanced home experience.

Specifications

No specification data available

Tours & Videos

No Videos Available

Gallery

Please note:

All sizes and dimensions are nominal or based on approximate builder measurements. 3D Tours and photos may include dealer and/or factory installed options. Mobile Homes For Less reserves the right to make changes due to any changes in material, color, specifications, or features at any time without notice or obligation.