ValuHomes Limited / 28563P

3D Tour

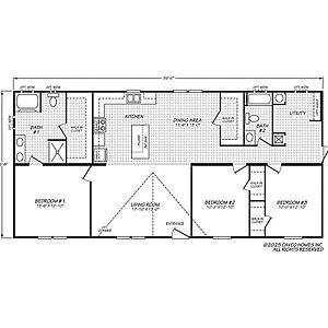
Floor Plan

Details

Manufactured

BEDS: 3     BATHS: 2.00     SQ FT: 1493     W X L: 28′ 0″ x 56′ 0″

BUILT BY: Cavco Waco

The ValuHomes Limited / 28563P built by Cavco Waco offers a practical and inviting layout across 1,493 sq. ft. With 3 bedrooms and 2 bathrooms, The 28563P features a spacious living room that connects to a large kitchen with an island and an adjacent dining area. The primary suite includes a walk-in closet and private bath, while two additional bedrooms share a second full bath. Designed for everyday comfort, The 28563P delivers efficiency and style in every room.

Specifications

No specification data available

Tours & Videos

Gallery

Please note:

All sizes and dimensions are nominal or based on approximate builder measurements. 3D Tours and photos may include dealer and/or factory installed options. Mobile Homes For Less reserves the right to make changes due to any changes in material, color, specifications, or features at any time without notice or obligation.