Landmark Series / 16763A

3D Tour

No 3d Tour Available

Floor Plan

Details

Manufactured

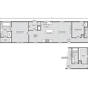
BEDS: 3     BATHS: 2.00     SQ FT: 1178     W X L: 16′ 0″ x 76′ 0″

BUILT BY: Cavco Waco

The Landmark Series / 16763A built by Cavco Waco showcases a smartly arranged 1,178 sq. ft. layout with 3 bedrooms and 2 bathrooms designed for practical, comfortable living. The 16763A features a spacious kitchen with a high bar, a central dining area, and a bright living room. The private primary suite includes a walk-in closet and a well-appointed bath, while two additional bedrooms share a convenient second bath. Thoughtfully crafted, The 16763A delivers a welcoming place to call home.

Specifications

No specification data available

Tours & Videos

No Videos Available

Gallery

Please note:

All sizes and dimensions are nominal or based on approximate builder measurements. 3D Tours and photos may include dealer and/or factory installed options. Mobile Homes For Less reserves the right to make changes due to any changes in material, color, specifications, or features at any time without notice or obligation.