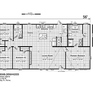
Redman Doublewides / RM2856B-2856H42055

3D Tour

No 3d Tour Available

Floor Plan

Details

Manufactured

BEDS: 4     BATHS: 2.00     SQ FT: 1493     W X L: 26′ 8″ x 56′ 0″

BUILT BY: Champion Homes

RM2856B-2856H42055

Specifications

Additional Specs: Detachable Hitch / Rolled Steel I-Beam
Exterior Wall Studs: 2x4 Exterior Walls
Floor Decking: OSB Floor Decking
Floor Joists: 2x6 Floor Joists
Side Wall Height: 8' Flat Ceiling
Insulation (Floors): R-11
Insulation (Walls): R-11
Insulation (Ceiling): R-11
Front Door: 34x76 6-Panel Outswing
Rear Door: 34x76 6-Panel Outswing
Shingles: Shingles - 25 yr/3 tab
Siding: Vinyl Siding over Foam Core
Window Type: Thermal Windows w/ Cordless Blinds
Exterior Lighting: Ext Lights (Jelly Jar) at each Door
Ceiling Texture: S/E Textured Ceilings
Interior Doors: 2 Panel Arch Top Doors
Interior Lighting: 4" LED Can Lights
Additional Specs: Flat Interior Trim / Cordless Blinds Throughout
Electrical Service: 200 AMP Service
Furnace: Electric Furnace
Utility Cabinets: Wire Shelving in Closets
Washer Dryer Plumb Wire: Wire & Vent for Dryer
Water Heater: 30 gal. Electric Water Heater
Bathroom Sink: Acrylic Sink
Bathroom Flooring: ArmorFlor Linoleum
Bathroom Countertops: Standard Countertops
Bathroom Shower: 60" 2 Pc. Tub/Shower
Kitchen Sink: 6" Stainless Steel Sink
Kitchen Refrigerator: 18' Frost Free Refrigerator
Kitchen Range Type: Electric Range
Kitchen Flooring: ArmorFlor Linoleum
Kitchen Countertops: Standard Countertops
Kitchen Cabinetry: MDF 32" Overhead Cabinets / MDF Shaker Cab Doors / Center Shelves Base & O/H / Refrigerator Overhead Shelf

Tours & Videos

No Videos Available

Gallery

Please note:

All sizes and dimensions are nominal or based on approximate builder measurements. 3D Tours and photos may include dealer and/or factory installed options. Mobile Homes For Less reserves the right to make changes due to any changes in material, color, specifications, or features at any time without notice or obligation.